Wettbewerb Haus der Statistik Fassadengestaltung 2018

Isometrie
Lageplan

Konzept Subtraktion + Verbindungen + Addition

Grundriss Erdgeschoss

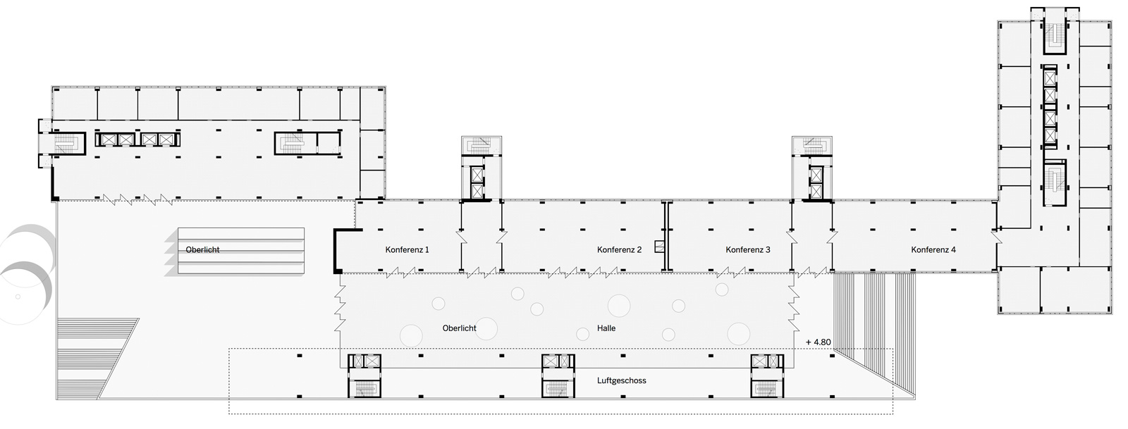
Grundriss 1.Obergeschoss

Grundriss Regelgeschoss

Ansicht Otto-Braun-Straße

Querschnitt
Modell

Aufgabe
Das ehemalige "Haus der Statistik" in unmittelbarer Nähe zum Alexanderplatz steht im Fokus der Berliner Stadtdiskussion - sowohl aus städtebaulicher und historischer Sicht, als auch in Hinblick auf seine Nutzungspotenziale.
Die Wettbewerbsaufgabe verfolgt zwei wesentliche Ziele mit sehr unterschiedlichem Betrachtungsmaßstab. Zum einen soll ein Konzept für die Fassadengestaltung und -sanierung gefunden werden. Zum anderen sollen Lösungen gefunden werden, die den an das „Haus der Statistik“ angrenzenden Straßenraum zur Otto-Braun-Straße neu strukturieren, Ergänzungsmöglichkeiten der Bestandsgebäude unter Ausnutzung der Freiflächen erörtern und eine angemessene städtebauliche Situation schaffen, die dem übergeordneten stadträumlichen Zusammenhang gerecht werden.
LEITIDEE
Die Idee „Bandfassade“ wird durch eingeschnittene Loggien und Lufträume ergänzt und um neue Bauteile erweitert.
KONZEPT
Das bestehende Ensemble des ehemaligen Haus der Statistik ist ein markantes Bauwerk am Berliner Alexanderplatz. Die charakteristischen, streifenförmigen Bandfassaden überziehen konsequent alle Bauteile. Dieses Grundthema des Erscheinungsbildes wird im vorgelegten Entwurf respektiert und beibehalten. Die räumlichen und technischen Probleme des Gebäudes werden schrittweise gelöst: Umbau des Bestands, Fassadensanierung und ergänzende Bauten.
Wettbewerb
Haus der Statistik. Fassade und städtebauliche Arrondierung - 2018
